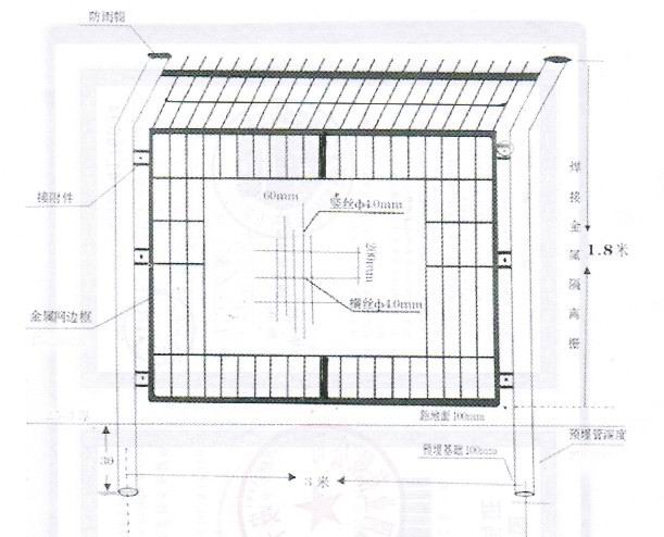
框架護欄網安裝圖紙指導說明
我廠十幾年專業致力于研究、開發、生產和銷售護欄網,圍欄,隔離柵,柵欄,努力向市場和客戶提供高品質的金屬護欄網系統的技術服務和解決方案,是目前中國市場上最具競爭力的高品質護欄網廠家之一
框架護欄網安裝方案:
1.基礎采用現場澆筑,基坑采用人工開挖,不能用人工開挖的巖石部分采用風鎬或風槍打淺孔。
2.基坑開挖坡度視地而定,安裝混凝土基礎前需檢驗基坑尺寸是否合適,平面位置及地面平整度和密實度,隨即進行基礎施工。
3灌筑基礎:混凝土前,對基坑進行檢查,檢查的內容為:①基地平面位置,標高是否符合規范要求。②基地土質是否滿足規范要求。③基坑有無積水,雜物、松散土質,是否清理完。
4. 基礎混凝土澆筑
基坑開挖到位后,應盡快澆筑混凝土基礎,基礎澆筑時要保證其位置,穩定性及標高:立柱混凝土基礎尺寸為300mm*300mm*400mm
5.金屬護欄網立柱施工方法,立柱制作完畢后,根據基礎施工情況進行安裝
一般采用二次澆灌成型,首先在基礎上做好二次澆灌預留孔,預留孔大小取決于立柱直徑,一般大于立柱直徑15-25mm,作為二次澆灌使用。
6.金屬護欄網網片施工方法:根據要求按照基礎及立柱施工,而后進行網片安裝施工。施工工程根據直線原則,同時又要對不平整地形,盡量整成直線平坡或斜披,使結構上不要有太大起伏。一下是框架護欄網安裝圖紙說明:
